Ingatlan adatlapja

Hivatkozási szám: N8832
Rögzítve: 2025-04-29

Ingatlan típusa: Town House
Település: Pilar de la Horadada
Tartomány: Alicante
Telek mérete: 30 m2
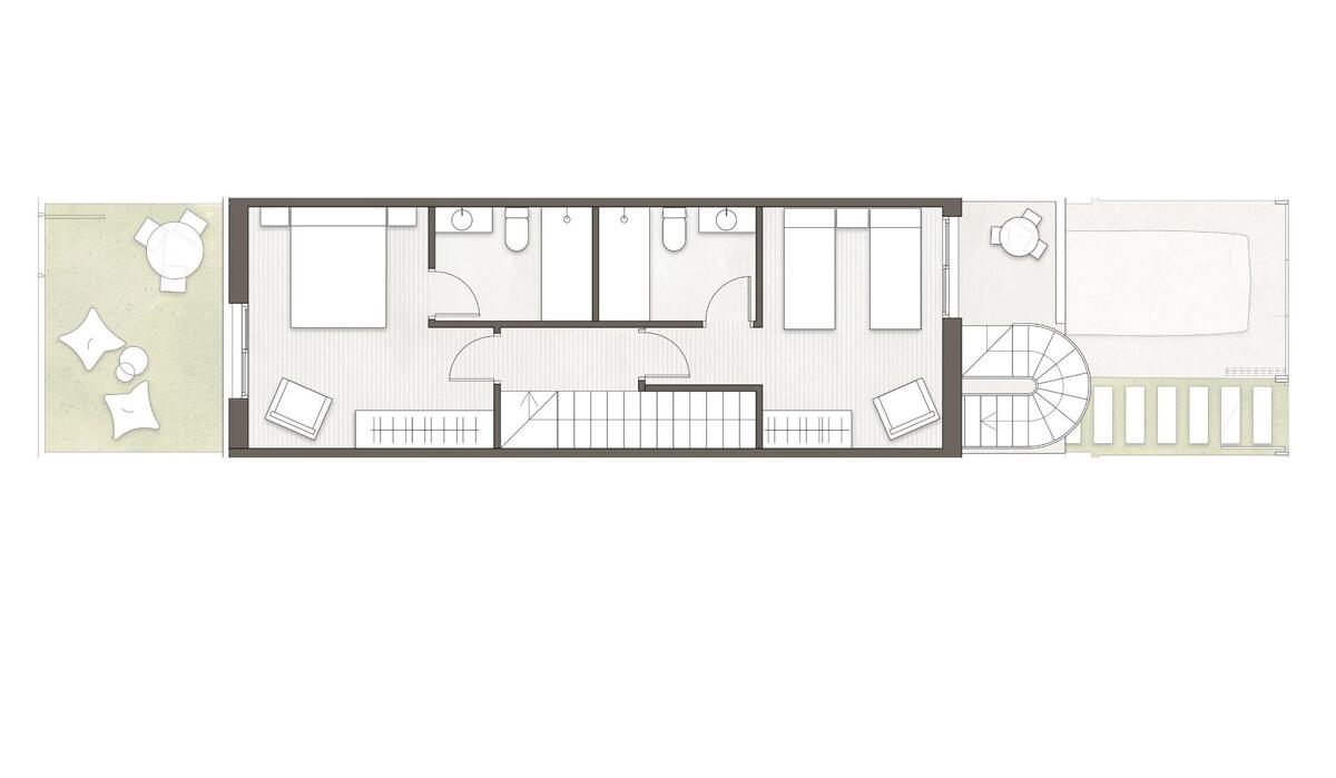
Lakóterület: 91 m2
Szobák: 2
Fürdőszobák: 2


298.900 EUR

Üdvözöljük ebben az exkluzív, 12 modern sorházból és sarokházból álló új fejlesztésben, amely a Costa Blanca déli csücskében, Pilar de la Horadada nyüzsgő tengerparti városában található. Ez a kiváló elhelyezkedés a mediterrán életmód és a kényelem tökéletes egyensúlyát kínálja, minden napi szolgáltatással, üzlettel, bárral és étteremmel sétatávolságra. Torre de la Horadada és Mil Palmeras aranyszínű strandjai mindössze 3 km-re találhatók, ideális tengerparti napokhoz, vízi sportokhoz és hosszú sétákhoz a sétányon. Sokoldalú ingatlantípusok az Ön életmódjához A fejlesztés számos otthoni elrendezést tartalmaz, amelyeket a kényelem és a funkcionalitás érdekében terveztek: 2 vagy 3 hálószobás sorházak, mindegyik 2 fürdőszobával és 1 vendég WC-vel Saját elülső és hátsó kert Saját parkoló a telken belül Első emeleti terasz és saját tetőtéri szolárium nyitott kilátással Sarokegységek nagyobb telkekkel állnak rendelkezésre a további kültéri tér érdekében Minden ingatlan világos és nyitott terű nappalival rendelkezik, Teljesen felszerelt konyha felső és alsó szekrénnyel, valamint modern kivitelben. Kiváló elhelyezkedés kiváló megközelíthetőséggel A Pilar de la Horadada jó összeköttetéssel rendelkezik Costa Blanca és Costa Cálida kulcsfontosságú helyeivel, így ideális állandó élethez, nyaraláshoz vagy bérleti befektetéshez. A közelben található főbb látnivalók: Torre de la Horadada és Mil Palmeras strandjai ? 3 km Lo Romero golfpálya ? 6 km Corvera repülőtér (Murcia) ? 40 km Alicante nemzetközi repülőtér ? 55 km Zenia Boulevard bevásárlóközpont ? 14 km San Pedro del Pinatar kikötő ? 11 km A tengerparti varázsa mellett a Pilar de la Horadada szabadidős tevékenységek széles skáláját kínálja, beleértve a kerékpárutakat, túraútvonalak és különféle sportolási lehetőségek. Az Ön ideális otthona a nap alatt Akár nyaralásra, akár teljes munkaidős rezidenciára vagy okos bérleti befektetésre vágyik, ezek az új építésű sorházak Pilar de la Horadadában kivételes értéket képviselnek a régió egyik legkívánatosabb tengerparti városában. Lépjen kapcsolatba velünk még ma további információért vagy látogatás egyeztetéséhez.


További képek:


Érdeklődés:

Szokoli Piroska

Telefon: +36 70 411 9927

E-mail: hirdeto.szolnok@gmail.com

Az ingatlanreferens további ajánlatai »

Kedvencek:

Az ingatlanok böngészése közben az Önnek tetsző ajánlatokat egy kattintással ide, a Kedvencek közé teheti, így később könnyedén visszatérhet rájuk.

Ady5 Ingatlanpont

IRODA: 5000 Szolnok,Ady Endre út 5.

 +36 70 411 9927

 info@ady5szolnokingatlan.hu

Rólunk

Irodánk elsősorban szolnoki és Szolnok környéki új ingatlanok értékesítésével és használt ingatlanok közvetítésével foglalkozik. Az ingatlanközvetítés területén átfogó, mindenre kiterjedő szolgáltatást nyújtunk, a tanácsadástól, az értékbecsléstől, a szerződéskötésen át a földhivatali ügyintézésig. Bármilyen kérdése lenne, forduljon hozzánk bizalommal.

© Ady5 Ingatlanpont | Minden jog fenntartva.