Ingatlan adatlapja

Hivatkozási szám: N7615
Rögzítve: 2025-09-02

Ingatlan típusa: Bungalow
Település: Algorfa
Tartomány: Alicante
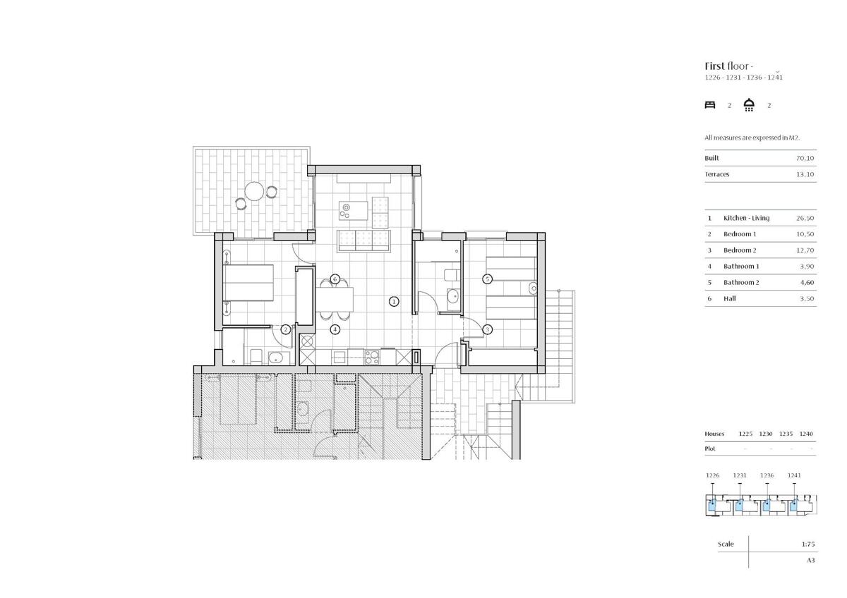
Lakóterület: 72 m2
Szobák: 2
Fürdőszobák: 2


239.000 EUR

Új építésű lakópark bungaló apartmanokból és sorházakból a La Finca golfban. A modern bungalók 2 hálószobával, 2 fürdőszobával, nyitott terű konyhával rendelkeznek, amely a hálószobákat, fürdőszobákat és teraszt összekötő nappalival van integrálva. A földszinti bungalók terasszal és kerttel, a legfelső emeleti bungalók terasszal és szoláriumokkal rendelkeznek. Déli tájolása természetes megvilágítást biztosít az év bármely szakában, és természetes fűtést biztosít hajnaltól napnyugtáig, ami csökkenti az energiafogyasztást. A nyitott koncepció ablakokkal és tolóajtókkal rendelkezik, amelyek lehetővé teszik a keresztszellőzést és beengedik a fényt. Az ingatlanok úgy helyezkednek el, hogy a fény mindenhová bejuthat, ugyanakkor friss és hangulatos sarkokat kínál. Az új fejlesztések egy hihetetlen telken zajlanak, ahol az otthonokat gondos tervezéssel és nagy terekkel valósították meg a maximális kényelem elérése érdekében. Kialakítása a lakók kényelmére és jólétére összpontosít, ötvözi a kortárs stílust és a mediterrán karaktert, örökölve a hagyományos morfológiát a homlokzaton és a lombkoronákon lévő kövek használatával. A konyhákat teljesen berendezve szállítjuk, nagy kapacitású, magas és alacsony bútorok jelenlegi kialakításával. Az alapegységek fehér matt lakkozott laminátumból, a felső egységek pedig melaminfából készültek, textúrával az oszlopokon. Félig rejtett fogantyúprofil gola* rendszerrel. Munkalap a munkaterületen és a félszigeten: Quarz, Compac, Blanco, Luna vagy hasonló. Páncélozott főajtó fehér lakkozott felülettel a belső szárnyon és barna textúrával a külső oldalon. Optikai kukucskáló és biztonsági zár. Fehér lakkozott beltéri ajtók, háromsávos elülső résszel és téglalap alakú rozsdamentes acél kezelőkkel. Beépített szekrények fehér tolóajtókkal. Ablakok és tolóajtók barna alumínium asztalosmunkából, texturált felülettel. Bukó-nyíló ablakok a fürdőszobákban, matt hatású üveggel és kézi redőnyökkel. Elektromos és motoros redőnyök, barna texturált alumínium kivitelben. Minden redőny csatlakozik az otthoni automatizálási rendszerhez, és szinkronizálva van a záráshoz és nyitáshoz, és az alkalmazásból működtethető. Speciális dupla üvegezés napvédelemmel és alacsony emissziós tényezővel, hogy a legtöbbet hozza ki a természetes fényből és csökkentse az energiaköltségeket. Optimális esztétikai megjelenés, kivételes színek és minimális tükröződés. Az A osztályú Properties magas szintű energetikai tanúsítást kínál. Ez a tetők és falak hőszigetelésének, a dupla üvegezésű alumínium asztalosmunkának, valamint az 5 db blokkonkénti napelem beépítésének köszönhető. A házak a Kisfeszültségű Elektrotechnikai Előírások által előírt elektromos és távközlési aljzatokkal vannak felszerelve. Kaputelefon az otthon és a főbejárat közötti kommunikációhoz. Fejlett otthoni automatizálási rendszert tartalmazunk a motoros redőnyök és három fénypont vezérlésére. Legrand Valena Next sorozatú mechanizmusok, amelyek csatlakoztathatók az otthoni automatizálási rendszerhez. Légkondicionáló előtelepítése: modelltől függően központi vagy osztott. Teljesen felszerelt riasztórendszer szobánként egy érzékelővel, érintőpanellel és szirénával. Az új fejlesztés a La Finca Golfban található. A La Finca golfpálya 11. hajóútjára néző első golfvonal mellett helyezkedik el, amely Spanyolország délkeleti részének egyik legemblematikusabb komplexuma, és a golf szerelmeseinek közös menedéke. Az Algorfától mindössze 4 percre, Costa Blanca déli részén található komplexum fedett parkolóval, közösségi medencével és kerttel tökéletes hely azok számára, akik szeretnék élvezni a mediterrán életmódot: közel a strandhoz, a golfhoz és a hegyekhez, nyugalommal körülvéve, de hozzáféréssel minden típusú szolgáltatáshoz és szabadidős területhez. Néhány percre Costa Blanca déli részének legszebb strandjaitól és olyan kivételes szépségű helyektől, mint a Laguna Rosa de Torrevieja vagy a Guardamar del Segura dűnéi. Az AP-7-es autópálya és a fő országutak közelsége és könnyű megközelíthetősége összeköti a komplexumot a Costa Blanca számos városával, mint például Orihuela, Cartagena, Elche, Murcia és Alicante. Alicante és Murcia repülőtere kevesebb mint 30 perces autóútra található, ahonnan járatok indulnak Európa főbb fővárosaiba.


További képek:


Érdeklődés:

Szokoli Piroska

Telefon: +36 70 411 9927

E-mail: hirdeto.szolnok@gmail.com

Az ingatlanreferens további ajánlatai »

Kedvencek:

Az ingatlanok böngészése közben az Önnek tetsző ajánlatokat egy kattintással ide, a Kedvencek közé teheti, így később könnyedén visszatérhet rájuk.

Ady5 Ingatlanpont

IRODA: 5000 Szolnok,Ady Endre út 5.

 +36 70 411 9927

 info@ady5szolnokingatlan.hu

Rólunk

Irodánk elsősorban szolnoki és Szolnok környéki új ingatlanok értékesítésével és használt ingatlanok közvetítésével foglalkozik. Az ingatlanközvetítés területén átfogó, mindenre kiterjedő szolgáltatást nyújtunk, a tanácsadástól, az értékbecsléstől, a szerződéskötésen át a földhivatali ügyintézésig. Bármilyen kérdése lenne, forduljon hozzánk bizalommal.

© Ady5 Ingatlanpont | Minden jog fenntartva.